Codice annuncio : N3055_O1
Vendita 375.000 € - NOALE – Ultimo Piano Terra con Giardino
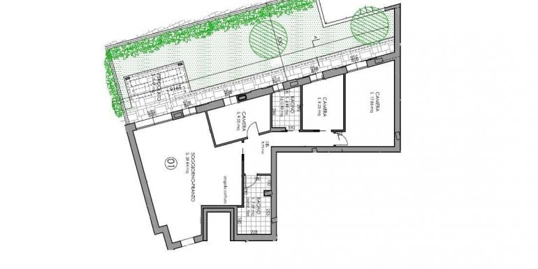
In un Oasi di Verde vi proponiamo questo ultimo appartamento al piano terra con giardino inserito in una singolare costruzioni che soddisfa ogni esigenza abitativa.
Questo appartamento presenta una ampia zona giorno con vetrata che da l’accesso alla pompeiana esterna ed al giardino privato che è in posizione soleggiata.
La zona giorno di 40 mq è ben disposta con ampia vetrata che rende luminosissimi tutti gli spazi e che da una vista sul verde del giardino.
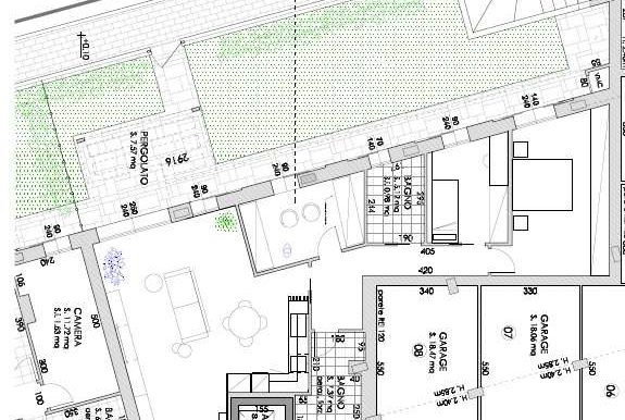
Nella zona notte ci sono 3 camere, bagno finestrato ed un altro bagno lavanderia di 8 mq. Garage al piano terra.
Modernità, eleganza e comfort si ritrovano in questo meraviglioso appartamento realizzato con materiali e tecnologie innovative che garantiscono un risparmio energetico. L’abitazione presenta pannelli fotovoltaici, riscaldamento a pavimento, aria condizionata canalizzata, impianto di riciclo d’aria interno per tenere salubre l’ambiente.
La tua nuova casa progettata per distinguersi!!
Classe energetica A4
Prezzo € 375.000,00
Nostro Rif. N3055_O1
Se per acquistare questo immobile hai la necessità di vendere prima un altro immobile, non preoccuparti perché ce ne occuperemo noi, seguendoti passo a passo sia nella vendita che nel successivo acquisto.
Si precisa che l’indirizzo esposto in pubblicità, per indicare la zona in cui si trova l’immobile in vendita, è puramente indicativo, al fine di salvaguardare la privacy del proprietario.
Per maggiori informazioni tel. 041.58.01.435 – cell. 393.96.30.883 – Email: Info@visioneimmobiliare.it – Sito: https://www.visioneimmobiliare.it
Ulteriori Informazioni
- Anno: 2025
- Mq. Garage: 20
- Vani: 6
- Camere Doppie: 1
- Camere Singole: 2
- Livelli Interni: 1
- Piani Condominio: 3
- Classe Energetica: A4
- Acqua Calda: Autonoma
- Arredi: Non Arredato
- Giardino: Privato
- Mq. Giardino: 90
- Grado: Signorile
- Infissi: Legno Triplo Vetro
- Lati liberi: 1
- Orientamento: Ovest
- Pavimento Bagno: Parquet
- Pavimento Cucina: Parquet
- Pavimento Zona Giorno: Parquet
- Pavimento Zona Notte: Parquet
- Persiana: Oscurante Legno
- Riscaldamento: Autonomo
- Serramenti: Nuovo
- Stato Immobile: Nuovo
- Cucina: Angolo Cottura
- Riscaldamento: Pompa di Calore
- Soggiorno: Soggiorno
- Totale Piani: Tre
- Balconi: No
- Terrazzi: No
















